воможно, видно что там паяли только вот почему то ли фишку саму меняли,то ли действительно по жиговский, причем ри вкл зажигания загораеться лампа акб и сек через 15 гаснет ,причем двиг не заведенseregavision писал(а):Мож в самой фишке, клеммы поменяны местами для работы жиговского регулятора?
лтк 1990год поскажите
- автобот 46
- настоящий ценитель
- Сообщения: 155
- Зарегистрирован: 03 фев 2013, 02:32
- Откуда: Курская обл
Re: лтк 1990год поскажите
- Николай Пименов
- Ветеран клуба АмАвто
- Сообщения: 28351
- Зарегистрирован: 20 окт 2007, 23:03
- Откуда: Самара
Re: лтк 1990год поскажите
На второй клемме напруга есть всё время (питание реле-регулятора), т.е. гаснуть ничего особо не должно...
- автобот 46
- настоящий ценитель
- Сообщения: 155
- Зарегистрирован: 03 фев 2013, 02:32
- Откуда: Курская обл
Re: лтк 1990год поскажите
на штекере по середине должен быть +,я правильно понял? гаснуть должно после запуска двигателя на сколько я понимаюНиколай Пименов писал(а):На второй клемме напруга есть всё время (питание реле-регулятора), т.е. гаснуть ничего особо не должно...
- Николай Пименов
- Ветеран клуба АмАвто
- Сообщения: 28351
- Зарегистрирован: 20 окт 2007, 23:03
- Откуда: Самара
- автобот 46
- настоящий ценитель
- Сообщения: 155
- Зарегистрирован: 03 фев 2013, 02:32
- Откуда: Курская обл
Re: лтк 1990год поскажите
и где ее взять?Николай Пименов писал(а):для этого есть распиновка разъема...
- Николай Пименов
- Ветеран клуба АмАвто
- Сообщения: 28351
- Зарегистрирован: 20 окт 2007, 23:03
- Откуда: Самара
- автобот 46
- настоящий ценитель
- Сообщения: 155
- Зарегистрирован: 03 фев 2013, 02:32
- Откуда: Курская обл
Re: лтк 1990год поскажите
Николай Пименов писал(а):вообще - в сервисном мануале, но его нету...
Re: лтк 1990год поскажите
Если гена G2,то вот схемка
- Николай Пименов
- Ветеран клуба АмАвто
- Сообщения: 28351
- Зарегистрирован: 20 окт 2007, 23:03
- Откуда: Самара
Re: лтк 1990год поскажите
Схема похожая, но цоколевку разъемов не дает. Кроме того, в желтом проводе обязан быть предохранитель.
Re: лтк 1990год поскажите
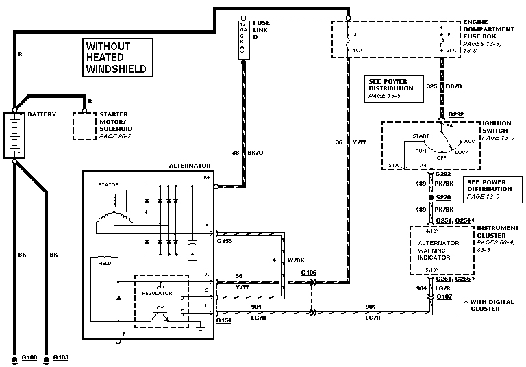
прилагаю текст к картинкеавтобот 46 писал(а): на рр выход с тремя штырьками A(+)должен быть+ с акб ,S (ST) (Phase) выход с одной из обмоток статора генератора. Служит для определения регулятором напряжения возбужденного состояния генератора -не совсем понятно ,I(L/IG- тоже не понятно.
по моему,как и написал автор по распиновке, всё совпадает.
- Николай Пименов
- Ветеран клуба АмАвто
- Сообщения: 28351
- Зарегистрирован: 20 окт 2007, 23:03
- Откуда: Самара
Re: лтк 1990год поскажите
А схемка смешная - земля соединяется с выходом В+ - обалдеть!
Может поискать поприличнее картинку?
Может поискать поприличнее картинку?
Re: лтк 1990год поскажите
Какая была на фриде нашёл,с землёй косяк явный 
- Николай Пименов
- Ветеран клуба АмАвто
- Сообщения: 28351
- Зарегистрирован: 20 окт 2007, 23:03
- Откуда: Самара
Re: лтк 1990год поскажите
92 год есть схема, но поможет ли?
По крайней мере все маразмы удалены...
По крайней мере все маразмы удалены...
Re: лтк 1990год поскажите
Вот,уже более правдивая картинка
По крайней мере хоть прозвонить можно,ведь со старым регулятором всё работало,значит где-то косяк с проводом(ами) или регулятор сам нерабочий.
По крайней мере хоть прозвонить можно,ведь со старым регулятором всё работало,значит где-то косяк с проводом(ами) или регулятор сам нерабочий.
- Николай Пименов
- Ветеран клуба АмАвто
- Сообщения: 28351
- Зарегистрирован: 20 окт 2007, 23:03
- Откуда: Самара
Re: лтк 1990год поскажите
Ну у регулятора 94 года соединение S сделано внутри корпуса гены, а так то же самое. А вот что было в 90м...


