закипел

Разговоры технического плана. Ремонт, характеристики, запчасти и т.д.
Аватара пользователя
Vision
Ветеран клуба АмАвто
Сообщения: 2193
Зарегистрирован: 30 апр 2012, 12:02
Откуда: Краснодар

закипел

Сообщение Vision » 02 июн 2012, 01:29

Доброго всем времени суток,прошу сильно не материть а лучше помочь советом :oops: в общем день прошел удачно приехал небо было ясным пели птички
ну и решил я смотаться в магаз за маслом для коробки так как нужно чуток подлить до уровня :roll: значит купил жижу,подъехал на ровную парковку подлил масла закрыл капот,трогаюсь и глядь дымок повалил из под капота :shock: ну думаю масло то тут причем :D глядь под капот и понимаю что кипим %) еще и стрелка зашкалила +пропеллеры молчат! весело короче.заглушил мотор,пробую принудительно включить карлсоны получилось тока замкнув реле малой скорости.стоим курим материм какието датчики и их мать антифриз почти весь свалил,руками создаю эффект помпы-сжимая шланги и обжигая руки :lol: жесть!остудил доехал до дома,померил сопротивление датчика температуры ОЖ=680 -нихрена не понял сколько там надо включил зажигание померял вольтаж на клеммах разъема датчика 4,8в и трещит клапан хх когда меряешь напряжение датчика ОЖ :o дальше перешел к пиву и забил до завтра на датчики и пропеллеры :D где посоветуете копать :oops: заранее благодарен всем откликнувшимся :friends:
Аватара пользователя
Dmitry171
Ветеран клуба АмАвто
Сообщения: 12460
Зарегистрирован: 12 авг 2008, 17:15
Откуда: Воронеж

Re: закипел

Сообщение Dmitry171 » 02 июн 2012, 02:00

а кто то обещал редко заходить к нам :)

проблема перегрева она как правило лежит в плоскости термостата и вентилятора или датчика температуры... начинай с вентилятора - кинь на него питание с акумулятора напрямую - если он закрутился.. то значит переходим к датчику температуры и релюшки включения вентилятора.. параллельно можно поменять термостат - даже если это и не он - хуже не будет :)
Mark VIII V8 4.6
Аватара пользователя
Николай Пименов
Ветеран клуба АмАвто
Сообщения: 28351
Зарегистрирован: 20 окт 2007, 23:03
Откуда: Самара

Re: закипел

Сообщение Николай Пименов » 02 июн 2012, 02:42

Термостат-то как раз проверяется влет, он работает абсолютно так же как на всех авто.
Датчик: 680 ом при комнатной температуре, теперь опускаем в чашку с чуть остывшим кипятком и смотрим изменения. Ну и дальше если всё меняется - толкьо силовые цепи собственно включения вентака. Согласно схемы как говорится.
Про масло: марку не перепутал? Хруслер очень любит свою особую АТФ (всякие 4+, 6+ и т.п., по возрасту твоему канает 4+), а от обычного декстрона ему плохеет очень.
Изображение
Изображение
Аватара пользователя
Vision
Ветеран клуба АмАвто
Сообщения: 2193
Зарегистрирован: 30 апр 2012, 12:02
Откуда: Краснодар

Re: закипел

Сообщение Vision » 02 июн 2012, 10:16

благодарю за советы,пошел мучить машину.
масло заливаю строго атф4+ мопар! хотя и декстрон2 предлагали залить(типа какая разница тоже ведь для коробки)
инет только дома,потому и посещаю часто-редко когда бываю дома.
Аватара пользователя
Vision
Ветеран клуба АмАвто
Сообщения: 2193
Зарегистрирован: 30 апр 2012, 12:02
Откуда: Краснодар

Re: закипел

Сообщение Vision » 02 июн 2012, 18:59

сегодня промыл спец жижей всю систему охлаждения грязи ноль,термостат новый и рабочий,крышка расширительного бачка новая радиатор новый помпа и ремень грм тоже новые.датчик температуры меняет сопротивление при нагреве охлаждении на всякий случай заказал новый,проверил все реле под капотом,предохранители.я так понимаю косяк где то в проводке.кстати с утра при запуске включился вент,через30 секунд выключился, тоже не понятно чего это он
Аватара пользователя
Николай Пименов
Ветеран клуба АмАвто
Сообщения: 28351
Зарегистрирован: 20 окт 2007, 23:03
Откуда: Самара

Re: закипел

Сообщение Николай Пименов » 02 июн 2012, 21:04

Это пусковой тест, не обращай внимания.
Не столько проводка, сколько блок управления двигателем+силовой модуль. Но вон вначале включает - значит, запросто может инфа от датчика не долетать до мозга.
Не знаю как у Хруслера, а у Форда есть хороший тест: снимаешь разъем с датчика - вентилятор включается на полную. Так тестируется что блок управления вообще "видит" датчик.
Изображение
Изображение
Аватара пользователя
alexauto2005
член клуба АмАвто
Сообщения: 352
Зарегистрирован: 08 май 2010, 00:14
Откуда: Россия,Тула
Контактная информация:

Re: закипел

Сообщение alexauto2005 » 03 июн 2012, 00:54

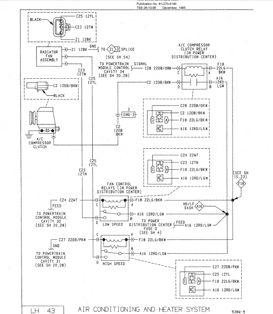
Судя по схеме подключения карлсонов,то я бы сначала проверил предохранитель №18 - 10А ,он подает питание на обмотки релюшек включения вентиляторов.
Схема прилагается.
схема вентилятора.jpg
схема вентилятора1.jpg
схема вентилятора2.jpg
DODGE CARAVAN 93 3.0L Silver
Изображение
Аватара пользователя
Vision
Ветеран клуба АмАвто
Сообщения: 2193
Зарегистрирован: 30 апр 2012, 12:02
Откуда: Краснодар

Re: закипел

Сообщение Vision » 03 июн 2012, 21:33

Всем огромное спасибо за оказанную помощь :beer: все протестил,зачистил и побрызгал контактной смазкой все соединения и прочие подозрительные места и поставил на прикол :D предварительно умирает датчик температуры и возможно моторчик хх.заказал так как в наличии нет,придется недельку на пешеходнотрамвайнотроллейбусном форуме ошиваться :lol:
Аватара пользователя
Николай Пименов
Ветеран клуба АмАвто
Сообщения: 28351
Зарегистрирован: 20 окт 2007, 23:03
Откуда: Самара

Re: закипел

Сообщение Николай Пименов » 03 июн 2012, 21:36

Моторчик ХХ к кипелову отношения не имеет.
Изображение
Изображение
Аватара пользователя
Vision
Ветеран клуба АмАвто
Сообщения: 2193
Зарегистрирован: 30 апр 2012, 12:02
Откуда: Краснодар

Re: закипел

Сообщение Vision » 03 июн 2012, 21:45

Николай Пименов писал(а):Моторчик ХХ к кипелову отношения не имеет.
(это мне машинка в нагрузку неисправностей добавляет) обороты плавать начали :D
Аватара пользователя
Николай Пименов
Ветеран клуба АмАвто
Сообщения: 28351
Зарегистрирован: 20 окт 2007, 23:03
Откуда: Самара

Re: закипел

Сообщение Николай Пименов » 03 июн 2012, 22:41

Ну смотри, может и не он быть.
Изображение
Изображение
Аватара пользователя
Vision
Ветеран клуба АмАвто
Сообщения: 2193
Зарегистрирован: 30 апр 2012, 12:02
Откуда: Краснодар

Re: закипел

Сообщение Vision » 06 июн 2012, 17:00

Вчера разобрал вентилятор который двухскоростной и понял почему он не сработал при перегреве :fool: дело оказалось в щетках,точнее износа и отсутствия одной из трех!щетка которая износилась до минимума благополучно зацепилась за движущиеся детали моторчика,предварительно пригласив на прогулку пружину ее прижимающую :shock: (странно как он вообще хоть и на первой скорости,крутился при подключении от АКБ напрямую :?: )
дальше пришлось сделать грустную мину и призвать на помощь колхоз и вентиль от чпокуса :D чуток мучений смекалки и нецензурной брани сделали свое дело,и у нас снова два рабочих вентилятора :Yahoo!:
А вот мораль что за щетками и не только нужно периодически следить и заменять чтоб не плодить похожих тем :) признайтесь кто делал ревизию в этом узле? :D :
щеточный узел
щеточный узел
машин еще не вылечился все еще жду датчик температуры ОЖ и еще вторую неделю :cry: кучу деталей по ходовой никак не дождусь
Аватара пользователя
alexauto2005
член клуба АмАвто
Сообщения: 352
Зарегистрирован: 08 май 2010, 00:14
Откуда: Россия,Тула
Контактная информация:

Re: закипел

Сообщение alexauto2005 » 06 июн 2012, 17:12

Сомневаюсь что бы кто-то делал ревизию щеток.
Я себе от "таза" карлсона поставил,а именно от волги.
Теперь одна скорость,но работает и не кипит.
DODGE CARAVAN 93 3.0L Silver
Изображение
Аватара пользователя
Николай Пименов
Ветеран клуба АмАвто
Сообщения: 28351
Зарегистрирован: 20 окт 2007, 23:03
Откуда: Самара

Re: закипел

Сообщение Николай Пименов » 06 июн 2012, 17:24

Ну уж замена щеток настолько простая операция, что даже не знаю, колхоз потребуется только в подборе по размеру и опиливанию где надо. Ну или если коллектор угроблен. А вот неродной вентиль не есть гуд - производительность-то не та...
Изображение
Изображение
Аватара пользователя
Vision
Ветеран клуба АмАвто
Сообщения: 2193
Зарегистрирован: 30 апр 2012, 12:02
Откуда: Краснодар

Re: закипел

Сообщение Vision » 06 июн 2012, 18:35

Николай Пименов писал(а):Ну уж замена щеток настолько простая операция, что даже не знаю, колхоз потребуется только в подборе по размеру и опиливанию где надо. Ну или если коллектор угроблен. А вот неродной вентиль не есть гуд - производительность-то не та...
да там пружинку с щекой перемололо в пыль,боюсь вот вот кирдык придет :D ,поэтому решил другой моторчик ставить :( менять буду скорее всего полностью в сборе,но не скоро :)
Ответить